
24小時服務熱線:135-0317-6066
Product display
Hot News
Contact Us
河北省獻縣滄恒環保設備廠
聯系人:王經理
電 話:0317-4641055
手 機:135-0317-6066
郵 箱:cangheng@qq.com
地 址:獻縣陳莊鎮經濟開發區



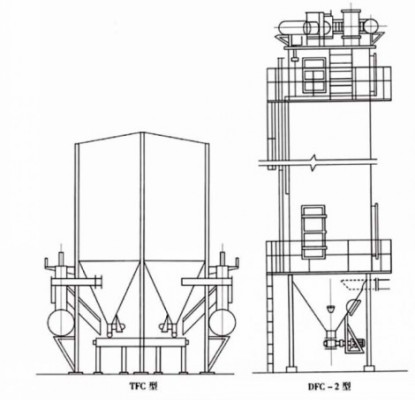
一、簡介
DFC、GFC、TFC型反吹風布袋除塵器是分室循環反吹清灰。下進風、內濾式高效除塵器。適用于冶金、化工、建材、電力、糧食加工、機械等部門以及工業爐窯或鍋爐,作為凈化含塵濃度<30g/Nm3,顆粒為0.1μm以上,溫度<260℃含塵氣體的設備。除塵效率可達99%以上。除塵器配有先進的自動程序控制清灰電控系統,電控系統具有反吹清灰自動監測功能。為了調試維護檢修和除塵系統安全連續運行,電控系統還具有手動清灰功能。

二、技術性能及外形尺寸
| 型號 | 濾袋數量(個) | 過濾面積(m2) | 過濾風速(米/分) | 風量(m3/h) | 阻力(Pa) | 外型尺寸(長×寬×高)(m) | 重量(t) | |
| 正壓式 | TFC-5200 | 529 | 5200 | <1.0 | 312000 | 180-200 | 16.05×8.2×26.3 | 170 | 
| TFC-7800 | 888 | 7800 | 468000 | 23.85×8.2×26.3 | 240 | |||
| TFC-10400 | 1184 | 10400 | 624000 | 16.05×16.4×26.3 | 310 | |||
| TFC-13000 | 1480 | 13000 | 780000 | 23.85×16.4×26.4 | 380 | |||
| TFC-15600 | 1776 | 15600 | 936000 | 31.65×16.4×26.3 | 450 | |||
| 負壓式 | TFC-4000 | 448 | 4000 | 240000 | 11.1×15.6×24.8 | 240 | ||
| TFC-6000 | 672 | 6000 | 360000 | 15.65×15.6×24.8 | 240 | |||
| TFC-8000 | 860 | 8000 | 480000 | 20.2×15.6×24.8 | 320 | |||
| TFC-10000 | 1120 | 10000 | 600000 | 24.7×15.6×24.8 | 400 | |||
| TFC-12000 | 1344 | 12000 | 720000 | 29.25×15.6×24.8 | 480 | |||
| GFC-280-4 | 336 | 1120 | 67200 | 7.64×3.647×15.31 | 38.8 | |||
| GFC-280-5 | 420 | 1400 | 84000 | 9.58×3.647×15.30 | 42 | |||
| GFC-280-6 | 504 | 1680 | 100800 | 11.52×3.647×15.16 | 50.26 | |||
| GFC-280-8 | 672 | 2240 | 134400 | 7.64×7.29×15.36 | 63.98 | |||
| GFC-280-10 | 840 | 2800 | 168000 | 9.58×7.29×15.36 | 72.12 | |||
| GFC-280-12 | 1008 | 3360 | 201600 | 11.52×7.29×15.34 | 81.68 | |||
| GFC-230-4 | 264 | 920 | 55200 | 7.64×3.05×15.08 | 36.4 | |||
| GFC-230-5 | 330 | 1150 | 69000 | 9.58×3.05×15.08 | 47.2 | |||
| GFC-230-6 | 396 | 1380 | 82800 | 11.53×3.05×15.8 | 54 | |||
| GFC-230-8 | 528 | 1340 | 110400 | 7.64×5.9×15.08 | 61.2 | |||
| GFC-230-10 | 660 | 2300 | 138000 | 9.58×5.9×15.08 | 67.4 | |||
| GFC-230-12 | 792 | 2760 | 165600 | 11.52×5.9×15.08 | 74.9 | |||
| GFC-140-4 | 160 | 560 | 33600 | 3.75×3.53×15.16 | 25 | |||
| GFC-140-6 | 240 | 840 | 50400 | 5.70×3.53×15.16 | 38 | |||
| GFC-140-8 | 280 | 1120 | 67200 | 7.64×3.53×15.16 | 50.7 | |||
| GFC-140-10 | 320 | 1400 | 8400 | 9.58×3.53×15.16 | 63 | |||
| GFC-140-12 | 480 | 1680 | 100800 | 11.52×3.53×15.16 | 75.7 | |||
| GFC-83-6 | 144 | 498 | 29880 | 4.3×3.5×13.9 | 23.0 | |||
| GFC-83-8 | 192 | 664 | 39840 | 5.64×3.5×13.9 | 30.7 | |||
| GFC-83-10 | 240 | 830 | 49800 | 7.1×3.5×13.9 | 38.4 | |||
| GFC-83-12 | 288 | 996 | 59760 | 11.5×3.5×13.9 | 47.3 | |||
| DFC-6-524 | 152 | 524 | 31400 | ф4000×16140 | 18 | |||
| DFC-3-180 | 52 | 180 | 10800 | ф2340×12480 | 10.86 | |||
| DFC-3-126 | 52 | 126 | 7560 | ф2340×10680 | 9.66 | |||
| DFC-3-80 | 52 | 80 | 4800 | ф2340×9030 | 8.08 | |||
| DFC-2-103 | 30 | 103 | 6180 | ф1808×11406 | 6.1 | |||
| DFC-2-73 | 30 | 73 | 4380 | ф1818×9606 | 5.4 | |||
| DFC-2-45 | 30 | 45 | 2700 | ф1818×7905 | 4.5 | |||
備注:以上所有技術參數僅供參考,如有更改不另行通知。