
24小時服務熱線:135-0317-6066
Product display
Hot News
Contact Us
河北省獻縣滄恒環保設備廠
聯系人:王經理
電 話:0317-4641055
手 機:135-0317-6066
郵 箱:cangheng@qq.com
地 址:獻縣陳莊鎮經濟開發區



一、簡介
LMN—Ⅰ型布袋除塵器設備是一種新型高效干式除塵設備,適用于凈化細小而干燥的非纖維性粉塵。自問世以來,已成功的應用于鑄造,耐火材料,粉煤輸送,面粉加工和建筑材料等行業,當過濾速度為1—2米/分,初始吹塵濃度<15克/米3 時,除塵效率可達99.5%以上。
該產品曾榮獲1981后沈陽市面上科學技術研究成果二等獎。
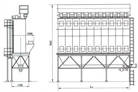
二、結構及工作原理
LMN—Ⅰ型布袋除塵器設備為組合袋式除塵設備,其基本單元有3排6列共18條φ185×3200毫米濾袋過濾面積為33米2,各單元之間用隔板分開。

含塵氣流由進風管進入除塵設備,經濾袋過濾后從上部排風管排出。積附于濾袋上的粉塵由脈動逆氣流反吹清除。清灰機構由鏈傳動裝置,切換閥和脈動閥組成,當某一單元處于清灰狀態時,切換閥從工作位置翻轉90度,切斷含塵氣路、同時引入反吹氣流。每一單元清灰時間為26秒。由于脈沖閥的脈動動作,濾袋在反向氣流一張一弛的作用下脹縮相間使附著其上的粉塵徹底除掉,并很容易地抖落到下部灰斗中。尾氣進入其余工作單元,經再過濾后排出。
本機由轉動鏈條控制,各單元按順序清灰,便于調節、運行可靠,維修方便。
三、選用說明
該除塵設備有3—16個單元,共14種組合形式,處理氣量范圍為3960—59400米3/小時,排風管沿除塵設備軸向兩端均可接管,可根據設計配置任選。
四、技術參數
型號 項目  | LMN— 54  | LMN— 72  | LMN— 90  | LMN— 108  | LMN— 126  | LMN— 144  | LMN— 162  | LMN— 180  | LMN— 198  | LMN— 216  | LMN— 234  | LMN— 252  | LMN— 270  | LMN— 288  | ||
組數  | 3  | 4  | 5  | 6  | 7  | 8  | 9  | 10  | 11  | 12  | 13  | 14  | 15  | 16  | ||
袋數  | 54  | 72  | 90  | 108  | 126  | 144  | 162  | 180  | 198  | 216  | 234  | 252  | 273  | 288  | ||
過濾面積 (米2)  | 99  | 132  | 165  | 198  | 231  | 264  | 297  | 330  | 363  | 396  | 429  | 462  | 495  | 528  | ||
處理氣量 (米3/時)  | 3960— 7920  | 5940— 11800  | 7920 — 15840  | 9900—19800  | 11880—23760  | 13860—27720  | 15840—31680  | 17820—35640  | 19800—39600  | 21780—43560  | 23760—47520  | 25740—51480  | 27720—55440  | 29700—59400  | ||
阻力 (毫米水柱)  | 70——125  | |||||||||||||||
清灰風量 (米3/時)  | 500  | 585  | 675  | 760  | 845  | 930  | 1005  | 1090  | 1175  | 1260  | 1345  | 1430  | 1515  | 1600  | ||
清灰時間(秒)  | 26  | 6  | 26  | 26  | 26  | 26  | 26  | 26  | 26  | 26  | 26  | 26  | 26  | 26  | ||
清灰間隔(秒)  | 130  | 182  | 234  | 130  | 156  | 182  | 208  | 224  | 234  | 234  | ||||||
傳 動 鏈  | 電機規格  | JW09B——4  | ||||||||||||||
功率(瓦)  | 0.25  | |||||||||||||||
逆氣流閥  | 電機規格  | JW09B——4  | ||||||||||||||
功率(瓦)  | 0.25  | |||||||||||||||
螺旋  | 減速機  | BWD1.5—2—59  | BWD2.2—2—59  | BWD2.2—3—59  | BWD3—3—59  | BWD4—4—59  | ||||||||||
電機規格  | Y90L——4  | Y100L1——4  | Y100L1——4  | Y100L2——4  | Y112M——4  | |||||||||||
功率(瓦)  | 1.5  | 2.2  | 2.2  | 3  | 4  | |||||||||||
排 灰 閥  | 減速機  | ——  | BWD1.5——2——59  | |||||||||||||
電機規格  | ——  | Y90L——4  | ||||||||||||||
功率(瓦)  | ——  | 1.5  | ||||||||||||||
進口管數目  | 1  | 2  | 3  | 4  | 5  | 6  | ||||||||||
備注:以上所有技術參數僅供參考,如有更改不另行通知。