
24小時服務熱線:135-0317-6066
Product display
Hot News
Contact Us
河北省獻縣滄恒環保設備廠
聯系人:王經理
電 話:0317-4641055
手 機:135-0317-6066
郵 箱:cangheng@qq.com
地 址:獻縣陳莊鎮經濟開發區



一、簡介
本除塵器是借鑒國內外先進技術研制成功的大型脈沖袋式除塵器,是單元組合式結構,可根據用戶需要串接或并接組成整體。除塵器具有高效能、低消耗的噴吹裝置,可實現低壓力、短脈沖并適合長濾袋的清灰。除塵器設有預分離導向結構,可使含塵氣體由下部進入,粗顆粒被分離流入灰斗,氣流向上進入濾袋區,可實現順噴,提高清灰效果。
本除塵器是一種除塵效率高、運行可靠、結構緊湊、安裝維修方便的大型除塵設備。
離線清灰解決了常規脈沖袋式除塵器存在的“粉塵再附與失控”問題,大大提高了濾袋清灰效果,從而提高過濾速度,節省清灰能耗和延長濾袋壽命,是我們具有特色的專有技術產品。
本除塵器特別適用于質輕、粒細、粘性粉塵的空氣凈化。分大、中、小三個系列。
二、結構及工作原理
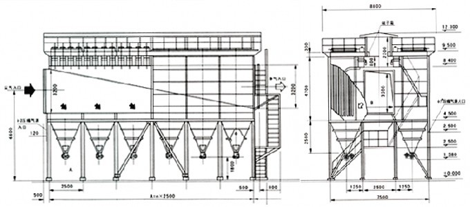
該除塵器由進出口煙道、除塵室、凈氣室、清灰系統及灰斗等組成(見圖4)。工作時廢氣溫度降為130℃,瞬間可達180℃的含塵氣體由布袋除塵器中下部的進口煙道分配后進入各室的灰斗,煙氣由于折流和速度降低等原因使得比較粗、比較重的粉塵顆粒得以沉降,達到預分離的目的。細粉塵隨氣流轉折向上進入除塵室,由于濾袋的過濾作用,粉塵被阻留在濾袋的外表面,過濾后凈氣體由濾袋內部進入各單元的凈氣室,并匯合于出口煙道"經引風機后通過煙囪排入大氣。

隨著時間推移,粉塵不斷地附著在濾袋上,使濾袋內外壓差增大,增大到設定值時,PLC控制系統發出信號,執行機構開啟脈沖閥用壓縮空氣進行脈沖清灰,以上的各項動作均由PLC可編程控制儀控制。
三、特點
1)氣流渦旋打散及均布裝置
氣流在進入除塵器后,由于截面突變會產生較強的渦旋,渦旋氣流會使剛收下來的粉塵再次以較高速度上揚,這樣不僅增加了濾袋負,同時也會沖刷濾袋并降低濾袋使用壽命。加入氣流渦旋打散及均布裝置后,可很大程度上減少渦旋對濾袋的沖刷,避免袋底相碰,延長濾袋使用壽命。
2)獨立模塊設計
普通的脈沖袋除塵器所有除塵室共用1個或2個灰斗,當某個室檢修時,有大量的冷空氣通過共用的灰斗進入收塵系統,使風機負荷大大增加以至造成風機電動機停機(也就是除塵器停機),進而影響整個燒成系統生產。
而該除塵器的每一個除塵室在操作上相對獨立,在每一個除塵室的進、出口煙道上都設有閥門,使其如同一個獨立的小除塵器,可以將某個除塵室從運行中獨立出來,如同彼此獨立的幾臺小除塵器的并聯,因此可以實現真正意義上的離線清灰,在線維修,使水泥廠能在不停窯的基礎上維修袋除塵器。
3)獨特的清灰系統
該除塵器采用逐行噴吹的方式,可通過噴吹管上開孔孔徑的變化,合理調節壓縮空氣噴吹到袋底的壓力,使其既能清灰徹底,又不損傷除塵布袋。
4)自帶旁路系統
該除塵器在設計中考慮了系統試生產時工況不穩定、上游設備(熱交換器)出現故障時,入口溫度將會超過濾袋的允許使用溫度,為了保護濾袋,在進出口煙道中增設了旁路系統,當出現異常高溫時,進氣閥自動關閉,旁路閥打開,所有超高溫氣體從旁路風道通過,從而可以保護濾袋不被燒損。
5)用于窯頭高溫煙氣處理時,采用耐高溫濾料,濾袋必須采用耐溫超過180℃耐磨蝕性好、抗氧化性能好的濾料。實踐證明,采用經過特殊工藝處理的耐高溫濾料,濾料裁剪采用激光切割,成型好,質量高,其使用效果好、使用壽命長。
6)除塵骨架
袋籠的所有筋線都采用自動點焊而成,橫筋的焊點位于立筋的內表面,并去除毛刺,避免濾袋的損傷。
四、技術性能
| 型號 | 規格 | 過濾面積(m2) | 濾袋數量(條) | 分組數目 | 處理風量(m3/h) | 過濾風速(m/min) | 脈沖閥個數(個) | 壓氣量(m3/min) | 重量(T) | 布置形式 | 
| LDML-Ⅰ2160 | 2160 | 1440 | 48 | 259200 | 2 | 48 | 1.1 | 81 | ||
| LDML-Ⅰ2520 | 2520 | 1680 | 56 | 302400 | 2 | 56 | 1.3 | 94 | ||
| LDML-Ⅰ2880 | 2880 | 1920 | 64 | 345600 | 2 | 64 | 1.5 | 107 | ||
| LDML-Ⅰ3240 | 3240 | 2160 | 72 | 388000 | 2 | 72 | 1.65 | 121 | ||
| LDML-Ⅰ3600 | 3600 | 2400 | 80 | 432000 | 2 | 80 | 1.82 | 134 | ||
| LDML-Ⅰ3960 | 3960 | 2640 | 88 | 475200 | 2 | 88 | 2.0 | 148 | ||
| LDML-Ⅰ4350 | 4350 | 2880 | 96 | 518400 | 2 | 96 | 2.2 | 161 | ||
| LDML-Ⅰ4680 | 4680 | 3120 | 104 | 561600 | 2 | 104 | 2.4 | 174 | ||
| LDML-Ⅰ5060 | 5060 | 3360 | 112 | 604800 | 2 | 112 | 2.55 | 188 | ||
| LDML-Ⅰ5400 | 5400 | 3600 | 120 | 64800 | 2 | 120 | 2.72 | 200 | ||
| LDML-Ⅰ5760 | 5760 | 3840 | 128 | 691200 | 2 | 128 | 2.9 | 212 | ||
| LDML-Ⅱ2880 | 2880 | 1440 | 72 | 345600 | 2 | 72 | 1.5 | 102 | ||
| LDML-Ⅱ3360 | 3360 | 1680 | 84 | 403200 | 2 | 64 | 1.75 | 119 | ||
| LDML-Ⅱ3840 | 3840 | 1920 | 96 | 460800 | 2 | 96 | 2.00 | 136 | ||
| LDML-Ⅱ4320 | 4320 | 2160 | 108 | 518400 | 2 | 108 | 2.25 | 152 | ||
| LDML-Ⅱ4800 | 4800 | 2400 | 120 | 576000 | 2 | 120 | 2.50 | 169 | ||
| LDML-Ⅱ5280 | 5280 | 2640 | 132 | 633600 | 2 | 132 | 2.75 | 185 | ||
| LDML-Ⅱ5760 | 5760 | 2880 | 144 | 691200 | 2 | 144 | 3.00 | 202 | ||
| LDML-Ⅱ6240 | 6240 | 3120 | 156 | 748800 | 2 | 156 | 3.25 | 219 | ||
| LDML-Ⅱ6720 | 6720 | 3360 | 168 | 806400 | 2 | 168 | 3.50 | 242 | ||
| LDML-Ⅱ7200 | 7200 | 3600 | 180 | 864000 | 2 | 180 | 3.75 | 252 | ||
| LDML-Ⅱ7680 | 7680 | 3840 | 192 | 921600 | 2 | 192 | 4.00 | 267 | ||
| LDMM225 | 225 | 200 | 5 | 33750 | 2.5 | 10 | 0.20 | 11.4 | 單列 | |
| LDMM270 | 270 | 240 | 6 | 40500 | 2.5 | 12 | 0.24 | 13.1 | ||
| LDMM315 | 315 | 280 | 7 | 47250 | 2.5 | 14 | 0.28 | 15 | ||
| LDMM360 | 360 | 320 | 8 | 54000 | 2.5 | 16 | 0.32 | 17.1 | ||
| LDMM405 | 405 | 360 | 9 | 60750 | 2.5 | 18 | 0.36 | 19.2 | ||
| LDMM450 | 450 | 400 | 10 | 67500 | 2.5 | 20 | 0.40 | 21.1 | ||
| LDMM540 | 540 | 480 | 2×6 | 81000 | 2.5 | 24 | 0.48 | 26.4 | 雙列 | |
| LDMM630 | 630 | 560 | 2×7 | 94500 | 2.5 | 28 | 0.56 | 31.2 | ||
| LDMM720 | 720 | 640 | 2×8 | 108000 | 2.5 | 32 | 0.64 | 34.7 | ||
| LDMM810 | 810 | 720 | 2×9 | 121500 | 2.5 | 36 | 0.72 | 39.5 | ||
| LDMM900 | 900 | 800 | 2×10 | 135000 | 2.5 | 40 | 0.80 | 42.8 | ||
| LDMS50 | 50 | 50 | 5 | 7500 | 2.5 | 5 | 0.05 | 2.5 | 單列 | |
| LDMS60 | 60 | 60 | 6 | 9000 | 2.5 | 6 | 0.06 | 2.8 | ||
| LDMS70 | 70 | 70 | 7 | 10500 | 2.5 | 7 | 0.07 | 3.3 | ||
| LDMS80 | 80 | 80 | 8 | 12000 | 2.5 | 8 | 0.08 | 3.7 | ||
| LDMS90 | 90 | 90 | 9 | 13500 | 2.5 | 9 | 0.09 | 4.1 | ||
| LDMS100 | 100 | 100 | 10 | 15000 | 2.5 | 10 | 0.1 | 4.8 | ||
| LDMS120 | 120 | 120 | 2×6 | 18000 | 2.5 | 12 | 0.12 | 5.9 | 雙列 | |
| LDMS140 | 140 | 140 | 2×7 | 21000 | 2.5 | 14 | 0.14 | 6.9 | ||
| LDMS160 | 160 | 160 | 2×8 | 24000 | 2.5 | 16 | 0.16 | 8.4 | ||
| LDMS180 | 180 | 180 | 2×9 | 27000 | 2.5 | 18 | 0.18 | 8.6 | ||
| LDMS200 | 200 | 200 | 2×10 | 30000 | 2.5 | 20 | 0.20 | 9.7 | ||
備注:以上所有技術參數僅供參考,如有更改不另行通知。