
24小時服務熱線:135-0317-6066
Product display
Hot News
Contact Us
河北省獻縣滄恒環保設備廠
聯系人:王經理
電 話:0317-4641055
手 機:135-0317-6066
郵 箱:cangheng@qq.com
地 址:獻縣陳莊鎮經濟開發區




一、概述
氣箱式脈沖布袋除塵器是九十年代先進水平面的高效率除塵器。它綜合分室反吹和噴吹脈沖清灰各類袋除塵器的優點,克服了分室反吹清灰強度不夠,噴吹脈沖清灰相過濾同時進行的缺點。因而擴大了袋式除塵器的應用范圍,由于這種類型的除塵器的結構有其特點,所以提高效率,延長了濾袋的使用壽命。
本系列產品可廣泛用于水泥廠的破碎、包裝、庫頂、熟料冷卻機和各種磨機等收塵系統、如用于煤磨收塵、要增設防燃防爆措施,收塵器結構也相應的改變,還適合含塵濃度特高的氣體的收塵,如帶O-Sep洗粉機的粉磨系統,氣體含塵濃度高達1000G/M3以上,采用本系列收塵器收塵,可不設置旋風收塵器作一級收塵。除用于水泥工業外也適用冶金、化工、機械和民用鍋爐等廢氣的收塵,本系列收塵器濾袋的材質一般采用滌綸針刺氈,允許使用溫度小于120℃。 如濾袋采用芳綸針刺氈,其允許使用溫度可達210℃。但這種材質的濾料價格昂貴。如處理的廢氣溫度高于上述濾料的允許溫度,廢氣進入收塵器之前應采取降溫措施。
本系列收塵器為戶外式由不同室數和每室的不同袋數,組成多種不同規格。每室的袋數有32、64、96和128袋四種。全系列共有33種規格,濾袋直徑均為130mm,濾袋長度有2450mm和3060mm兩種。本系列收塵器能負壓或正壓操作,基本體結構無任何改變,其收塵效率可達99.9%以上,凈化后氣體含塵濃度小于100MG/M3,本系列收塵器的主要技術性能分別見表2、表3和表4。本系列收塵器如用于寒冷地區,當室外采暖計算溫度-25℃時,若要增設加熱裝置,收塵器的殼體也要作相應的改變。
二、 選型說明
一般要根據塵源點處理氣體的主要技術參數,如風量、氣體溫度和含塵濃度等,按下列步驟進行選型。
1、根據處理氣體量按下式計算收塵器凈過濾面積:
F= Q / 60VN(㎡)
式中: Q——處理氣體量(M3/H)
VN—凈過濾風速(M/min)
水泥廠各主要塵源點的凈過濾風速的建議如表1所示。所謂凈過濾風速和凈過濾面積是指某一室停止過濾進行清灰時的過濾風速和過濾面積。

2、根據計算得出的凈過濾面積,則可直接從表2、3、4中選取合適的收塵器。
三、型號說明
F M Q D XX------- a × b
F表示: 氣箱式; M表示: 脈沖; Q表示: 收塵器;
D表示 : 螺旋輸送機、空氣輸送斜槽; XX表示: 每一室的濾袋數;
a表示:列數(單列不標注); b表示:每列的室數

舉例FMQD96-2×5型表示雙列十室每室96個袋的氣箱式脈沖袋收塵器(排灰裝置為螺旋輸送機)。
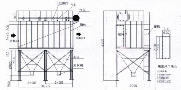
三、工作原理
含塵氣體經進氣口進入除塵器,較大顆粒的粉塵直接落入灰斗,含有微粒粉塵的氣體通過濾袋,粉塵被滯留在濾袋外邊面,而氣體則經凈化后由引風機排入大氣。
隨著過濾工作的不斷進行,附著在濾袋外表面的粉塵不斷增多,除塵器運行阻力增大,某一過濾單元的轉換閥關閉,過濾單元停止工作,反吹壓縮空氣逆向進入過濾單元,吹掉濾袋外表面的粉塵,然后轉換閥板打開,該過濾單元重新工作,清灰轉向下一過濾單元。整個清灰過程是各個過濾單元輪流交替進行的。
四、技術參數
| 型號 | 參數 | 處理風量(m3/h) | 過濾風速(m/min) | 過濾面積(m2) | 濾袋數(個) | 阻力(Pa) | 含塵濃度(g/m3) | 保溫層面積(m2) | 重量(kg) | 
| 32-3 | 6900 | 1.2-2.0 | 93 | 96 | 1470-1770 | <1000 | 26.5 | 2.880 | |
| 32-4 | 8930 | 124 | 128 | 34 | 4.080 | ||||
| 32-5 | 11160 | 155 | 160 | 41 | 5.280 | ||||
| 32-6 | 13390 | 186 | 192 | 48.5 | 6.480 | ||||
| 64-4 | 17800 | 248 | 256 | 70 | 7.280 | ||||
| 64-5 | 22300 | 310 | 320 | 94 | 9.960 | ||||
| 64-6 | 26700 | 372 | 384 | 118 | 11.640 | ||||
| 64-7 | 31200 | 434 | 448 | 142 | 13.320 | ||||
| 64-8 | 35700 | 496 | 512 | 166 | 15.000 | ||||
| 96-4 | 26800 | 372 | 384 | <1300 | 110 | 10452 | |||
| 96-5 | 33400 | 465 | 480 | 120 | 12120 | ||||
| 96-6 | 40100 | 557 | 576 | 130 | 14880 | ||||
| 96-7 | 46800 | 650 | 672 | 140 | 16920 | ||||
| 96-8 | 53510 | 744 | 768 | 150 | 19810 | ||||
| 96-9 | 60100 | 836 | 864 | 160 | 21240 | ||||
| 96-2×5 | 66900 | 929 | 960 | 175 | 25200 | ||||
| 96-2×6 | 80700 | 1121 | 1152 | 210 | 30240 | ||||
| 96-2×7 | 94100 | 1308 | 1344 | 245 | 35280 | ||||
| 96-2×8 | 107600 | 1494 | 1536 | 280 | 40320 | ||||
| 96-2×9 | 121000 | 1681 | 1728 | 315 | 45360 | ||||
| 96-2×10 | 134500 | 1868 | 1920 | 350 | 50400 | ||||
| 128-6 | 67300 | 935 | 768 | 125 | 24120 | ||||
| 128-9 | 100900 | 1402 | 1152 | 196 | 31680 | ||||
| 128-10 | 112100 | 1558 | 1280 | 205 | 34680 | ||||
| 128-2×6 | 34600 | 1869 | 1536 | 323 | 43920 | ||||
| 128-2×7 | 15700 | 2181 | 1792 | 247 | 52680 | ||||
| 128-2×8 | 179400 | 2492 | 2084 | 262 | 60000 | ||||
| 128-2×9 | 201900 | 2804 | 2304 | 277 | 66480 | ||||
| 128-2×10 | 224300 | 3115 | 2561 | 292 | 72000 | ||||
| 128-2×11 | 247600 | 3427 | 2856 | 307 | 78480 | ||||
| 128-2×12 | 269100 | 3728 | 3072 | 322 | 96400 | ||||
| 128-2×13 | 291600 | 4050 | 3328 | 337 | 93600 | ||||
| 128-2×14 | 314000 | 4361 | 3584 | 252 | 100800 | ||||
備注:以上所有技術參數僅供參考,如有更改不另行通知。
五、幾點說明:
1、收塵器本體包括殼體、灰斗、濾袋裝置進出口風管、排灰裝置和脈沖噴吹系統(包括脈沖閥、管道、閥門、氣源三連體和儲氣罐等)。
2、根據不同規格,可以是整機發運,也可以解體發運,其基礎設計由選用者負責。
3、本除塵器配備有清灰電氣控制裝置,一般按定時清灰控制。如用戶要求按定阻控制訂貨時應注明,其定阻控制的差壓計、差壓指示報警儀以及其他儀表等的收費用要另行計算。
4、系列產品由制造廠提供設備使用和安裝說明書。
5、系列產品卸灰裝置的供配電由用戶自行設計。